
クリニック&テナント
活気あふれる薬院大通りで、ビジネスのネットワークを広げる拠点。「Capital Gate」
ACCESSアクセス
薬院大通駅から徒歩30秒の好立地!2025年5月に誕生した新築のテナントオフィスビルです。

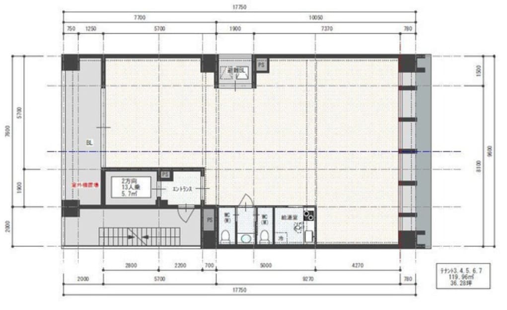
FLOOR PLANフロアプラン
ビジネススタイルに合わせて自由自在にアレンジ可能なワンフロア貸し。理想のオフィス空間を創り上げます。

36.28坪/119.96㎡






36.28坪/119.96㎡
空室情報
| 階数 | 賃貸面積 | 賃料(坪単価) | 共益費(坪単価) | 敷金 | 入居可能日 | 店舗利用 | 分割利用 | 備考 |
|---|---|---|---|---|---|---|---|---|
| 4 | 36.28坪 | 616,760円 (@17,000円) | 15,000円 (@413円) | 6ヶ月 | 即日 | 店舗可 | 定期借家契約5年 1フロア 事務所仕上げ | |
| 5 | 36.28坪 | 616,760円 (@17,000円) | 15,000円 (@413円) | 6ヶ月 | 即日 | 店舗可 | 定期借家契約5年 1フロア 事務所仕上げ |
※上記金額には別途消費税が必要となります。
| 所在地 | 福岡市中央区薬院4-1-4 |
|---|---|
| 交通 | 福岡市七隈線 薬院大通駅 徒歩2分 西鉄天神大牟田線 薬院駅 徒歩7分 |
| 構造 | 鉄筋コンクリート造 9階建 |
| 竣工年月 | 令和7年4月 |
| エレベーター | 乗用: 13人乗り 1基 |
| 警備 | 機械警備 |
| 駐車場 | なし |
| 空調 | 個別空調 |
| 出入時間 | 平日:時間制限有り 日祝:時間制限有り 通用口:24時間出入り可 |
| 床仕上げ | OAフロア |
| こだわり | 新耐震基準適合駅徒歩5分以内大通沿い新築・築浅光ケーブル24時間出入り可能 |
| 最終更新日 | 2026/04/06 |
| 次回更新予定日 | 2026/04/20 |
FEATURES特徴
最新のトレンドに対応した、次世代型オフィスを創造できます。

薬院大通駅 隣接の価値
福岡市地下鉄七隈線「薬院大通」駅ほぼ直結。雨の日もほぼ濡れることなくアクセスでき、従業員やお客様にとって比類なき利便性を誇ります。
生活利便性
隣接するスーパーマーケットは、日々の生活をサポート。周辺には大手地銀2行があり、金融機関との連携もスムーズです。


充実のセキュリティ
安心のセキュリティシステムを導入。お客様のビジネスを安全に守ります。ALSOKが24時間365日対応。
CONTACTお問い合わせ
まずはお気軽にお問い合わせください。
お問い合わせの際にホームページを見たとお伝えいただくとスムーズです!

株式会社オフィスリーテイル
(担当:白幡)
